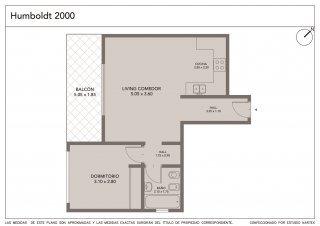
Semipiso de dos ambientes, al contrafrente, ubicado en el tercer piso, totalmente equipado y preparado para alquiler temporario o tradicional, en Palermo Hollywood. Dispone de living comedor luminoso con cocina integrada y salida a gran balcón. Cuenta con un dormitorio con placard incorporado, hall con placard de recepción, y un baño completo. Ventanas de piso a techo que brindan excelente luz natural. Edificio moderno en muy buen estado. A una cuadra de Av. Juan B. Justo (Metrobus), a cinco cuadras de Av. Santa Fe y a seis cuadras de la estación Palermo (Subte línea D). Próximo al Shopping Distrito Arcos, al Polo Tecnológico de calle Godoy Cruz, y a Clínica Los Arcos. Zona bien conectada mediante transporte público y con múltiples accesos a distintas zonas de la ciudad. Toda la información del aviso, incluyendo medidas, precio, impuestos, servicios, etc. son estimativos, sujetos a modificación y no vinculantes, según lo dispuesto en el art. 973, Cód. Civ. y Com.