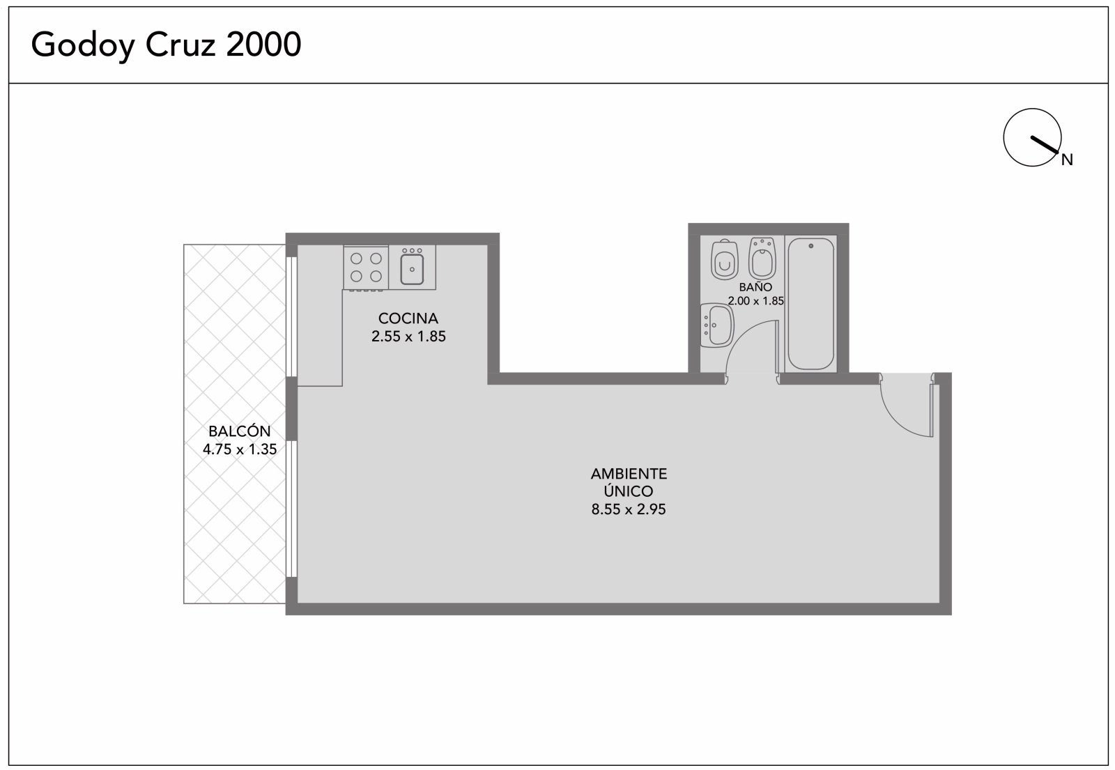
Monoambiente luminoso con vista abierta al contrafrente. Ofrece un ambiente amplio y funcional, con cocina en L que permite separar cómodamente las áreas de uso y un baño completo. El balcón, además de aportar aire y luz, cuenta con conexión para lavarropas. Ubicado en una de las zonas más convenientes de Palermo: a media cuadra del shopping a cielo abierto Distrito Arcos, cerca de Juan B. Justo con todas sus líneas de transporte, y a solo 6 cuadras del subte D (estación Palermo) y de Av. Santa Fe, con excelente conectividad a diferentes medios de transporte. Apto profesional. Toda la información del aviso, incluyendo medidas, precio, impuestos, servicios, etc. son estimativos, sujetos a modificación y no vinculantes, según lo dispuesto en el art. 973, Cód. Civ. y Com.