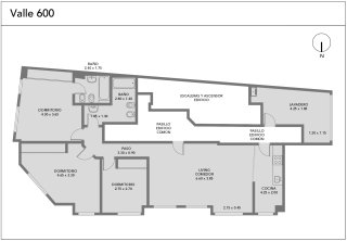
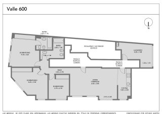
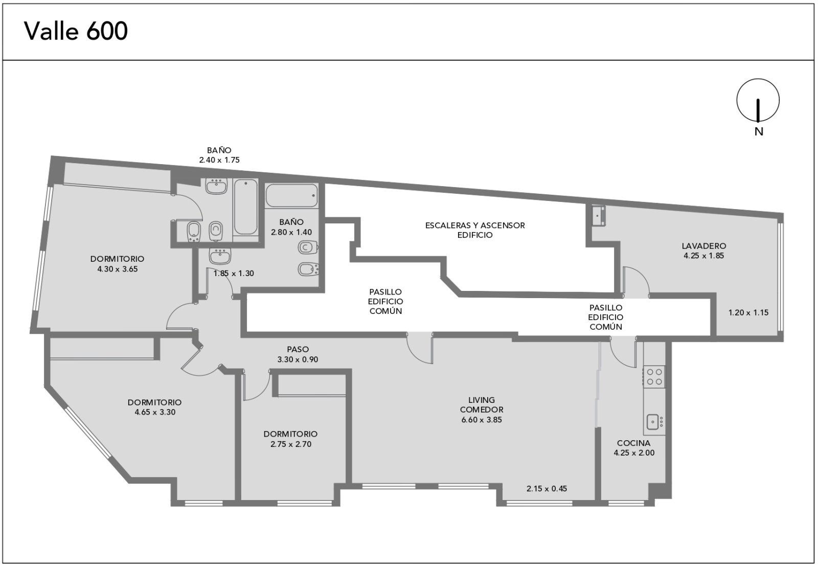
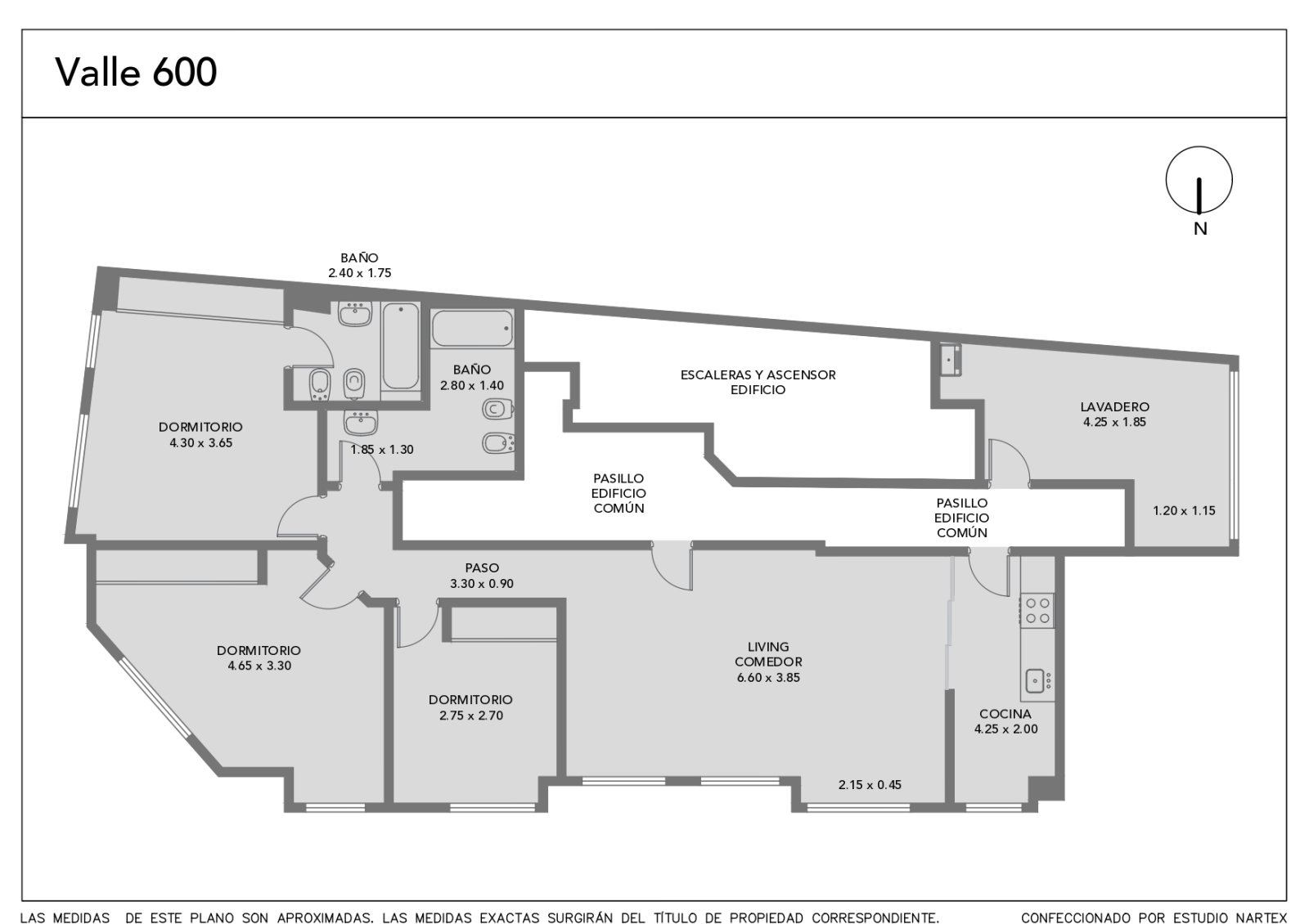
Departamento 4 ambientes en venta en Caballito, primer piso, a una cuadra de Av. Pedro Goyena y José María Moreno. Superficie total 92 m², orientación norte, patio cerrado luminoso. Excelente estado general, edificio 20 años. Ambientes amplios y funcionales. Incluye cochera fija y baulera. Zona residencial de alta demanda, cercanía a subte, comercios, restaurantes y servicios. Ideal vivienda familiar. Accesible: NO (Ley 5.115). Toda la información del aviso, incluyendo medidas, precio, impuestos, servicios, etc. son estimativos, sujetos a modificación y no vinculantes, según lo dispuesto en el art. 973, Cód. Civ. y Com.