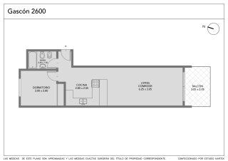
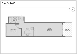
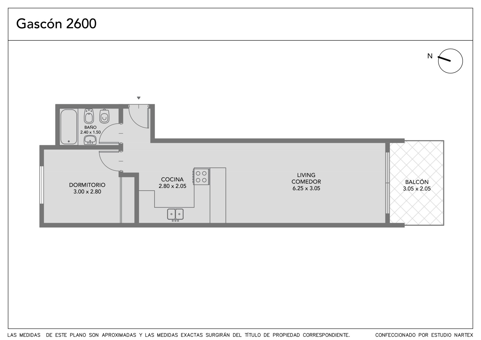
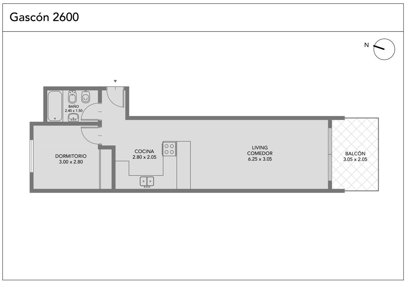
Venta departamento de 2 ambientes con Baulera, y amenities (Parrilla, SUM, Landry, Gimnasio y vestuarios) en Almagro. Ideal vivienda o renta. Ubicado en un 4to piso al frente con orientación N. Ingreso por living comedor con cocina integrada, con barra desayunadora y espacio para lavarropas. Amplio balcón con vista verde y luminosidad. Un baño completo y un dormitorio con placares de piso a techo. Edificio con encargado con vivienda, pin de ingreso, y amenities: Parrilla, SUM, Landry, Gimnasio y Vestuarios. Baulera en subsuelo. Los metros aquí publicados son aproximados, los reales surgen de la escritura. Accesible: No (Ley 5.115). Si te interesa, pero necesitas vender para comprar, también podemos ayudarte. -Comercializa Exequiel Petagna Compromiso Inmobiliario CUCICBA 7827. - Toda la información del aviso, incluyendo medidas, precio, impuestos, servicios, etc. son estimativos, sujetos a modificación y no vinculantes, según lo dispuesto en el art. 973, Cód. Civ. y Com.