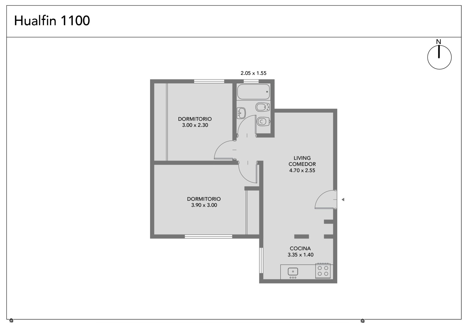
OPORTUNIDAD - Departamento de 3 ambientes en Caballito, zona Goyena / Barrio Inglés. APTO CREDITO - Cocina integrada, dos dormitorios con placard y ventanas, baño completo con ventana y baulera exclusiva. Pisos de madera y cemento alisado. Aire acondicionado. Edificio tradicional y tranquilo, bajas expensas. Ideal estudiantes, (zona Puan), familias o inversión. No es apto profesional. Publicación con video, planos y recorrido 360! Toda la información del aviso, incluyendo medidas, precio, impuestos, servicios, etc. son estimativos, sujetos a modificación y no vinculantes, según lo dispuesto en el art. 973, Cód. Civ. y Com.